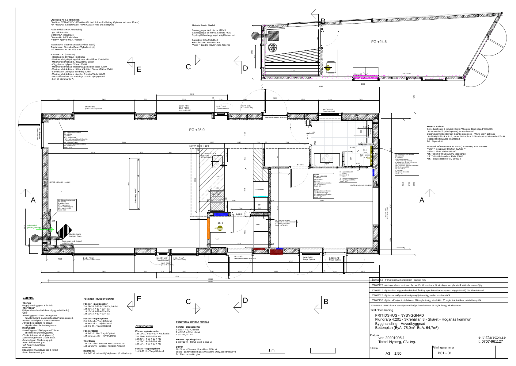
As a principal developer and owner I’ve been in involved in all phases of building a house in the south of Sweden. Including architectural design, construction engineering and carpentry. With some help of course (Rosenkvist Bygg) Many more pictures here: Skrehällan|Skäret





























